



Le Rœulx 7070
2 2 140 m2 520 m2
Offre àpd. 169 000 €
Votre bureau IMMO CHRONO a le plaisir de vous proposer en exclusivité cette maison avec terrain disposant d'un permis d'urbanisme accordé pour l'augmentation du volume habitable offrant ainsi un grand potentiel de réaménagement.
Située à Thieu, proche des ascenseurs et du canal historique de centre, avec un accès rapide aux axes autoroutiers, cette maison à parachever de +/- 140 m2 érigée sur un terrain de +/- 520m2 se compose comme suit:
Au rdc, un premier salon de +/- 17m2, un deuxième salon de +/- 17m2, une pièce à usage de bureau/coin repas de +/-14 m2, une cuisine de +/- 9m2, une buanderie de +/- 6m2 avec wc séparé et d'une salle de bains de +/- 7m2.
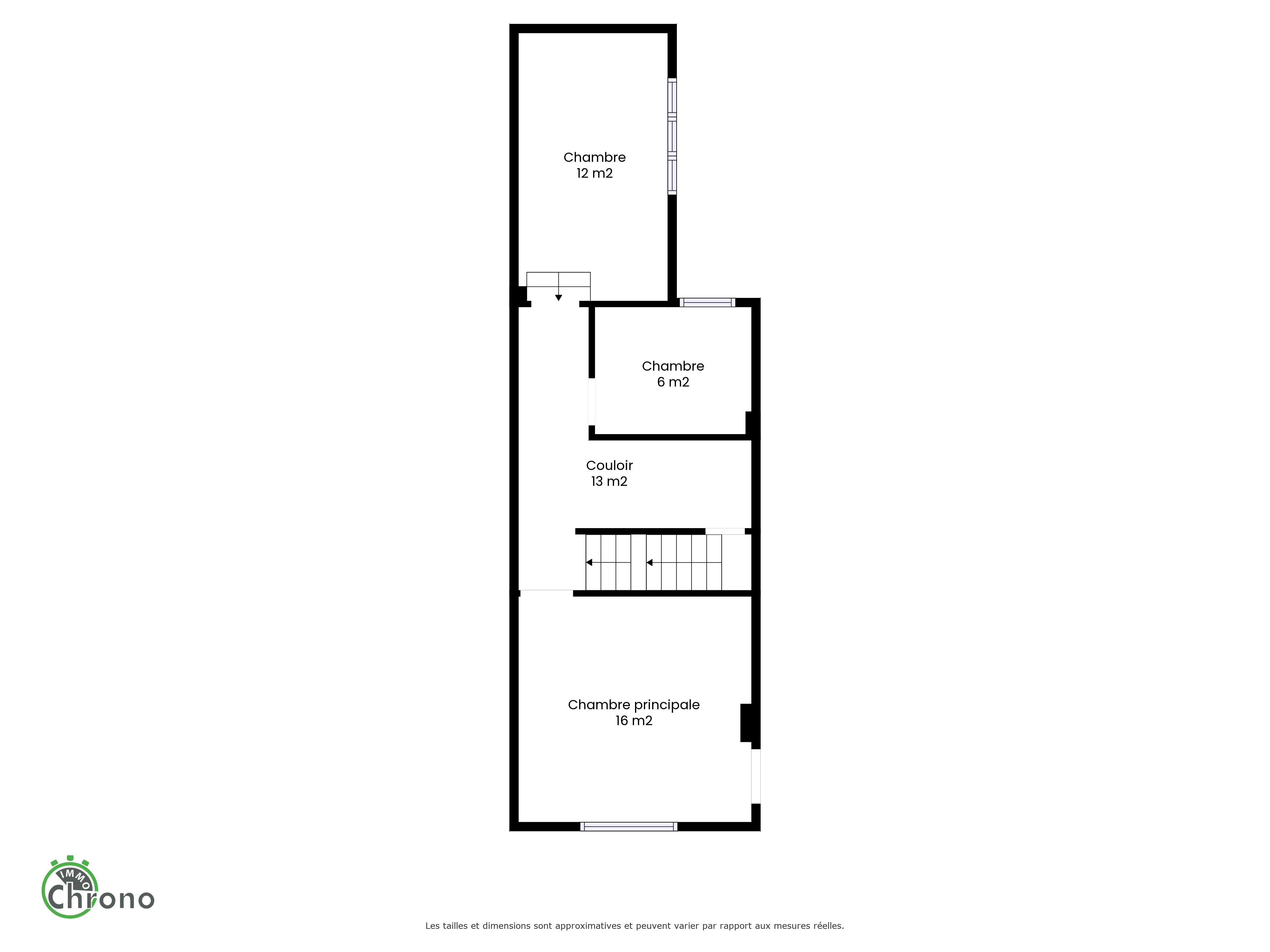
Au 1er étage: deux chambre de +/- 16 m2 et 12m2, un hall de nuit de +/- 13 m2 pouvant servir de dressing, une salle d'eau de +/- 6m2
Au 2ème étage, un grenier de +/- 20m2 pouvant être transformé en une grande chambre supplémentaire.
Au sous-sol: une cave avec son espace chaufferie
Extérieur: un premier parking à l'avant du bien, une terrasse, un jardin, un garage et un grand parking pouvant être réaménagé selon vos besoins.
Confort: la toiture ainsi que le bardage ont été récemment rénové et isolé, nouvelle chaudière au gaz,...
Prix: faire offre à partir de 169.000,00€ (sous réserve d'acceptation par le propriétaire vendeur)
Publicité à caractère indicatif et ne constituant pas une offre.
100 m
4000 m
Oui
Oui
03/01/2026
1932
2024
1
en pente
35 m²
actuellement petite pièce entre salon et cuisine
possible de créer une chambre supplémentaire
sous la partie avant
Oui
Oui
Oui
Oui
1
2
1
113 m²
38 m²
16 m²
12 m²
17 m²
17 m²
9 m²
14 m²
202581700894
17/08/2035
17/08/2025
399 kwh/m²/an
68606 Kwh/an
73 kg CO2/(m2.an)
Non
Oui
Non
Oui
gaz (chau. centr.)
douche et bain
individuel
bois
nouvelle chuadière
Oui
Oui
Oui
Oui
Oui
Oui
sud-ouest
nord
sud ouest
sud ouest
pas situé en zone inondable
2
4
064/775444
gabrielle@immo-chrono.be
Vous souhaitez en savoir plus sur le bien et/ou le visiter ?